Certificate of Lawfulness Approved for Regularisation of Works in Canterbury

Image by Richard Jones

Planning conditions can sometimes create unforeseen challenges for property owners, restricting how they use their own homes. We recently achieved a significant victory for our client, securing a Lawful Development Certificate that removed a restrictive condition preventing ground floor living accommodation in their property.

The Planning Challenge

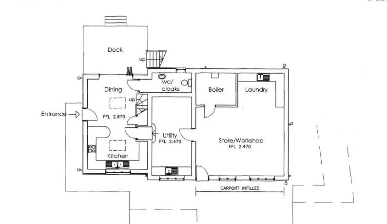
Our client's property was originally granted planning permission with Condition 5, which prohibited any sleeping or living accommodation on the ground floor. This condition was imposed due to the property's location in Flood Zone 3a, requiring all living spaces to be situated on the first floor at a minimum height of 4.5 metres above Ordnance Datum Newlyn (maODN).

While flood safety is undoubtedly important, this restriction meant that spaces designed as a workshop, utility room, and storage areas could not be used for everyday family living. For a growing family, this significantly limited the functionality of their home.

The council had previously refused an application to remove this condition in 2015, citing unacceptable risk to human life in the event of flooding and non-compliance with local flood risk policies.

Understanding the Legal Framework

Under planning law, there's an important principle that can help property owners in situations like this: the ten-year rule.

When a breach of a planning condition has occurred continuously for ten years or more, the use becomes lawful through the passage of time.

Section 171B of the Town and Country Planning Act 1990 establishes that enforcement action cannot be taken after ten years for breaches of planning control relating to changes of use. This means that if you can demonstrate continuous breach of a condition for this period, you can apply for a Certificate of Lawful Use or Development (CLUD).

This isn't about circumventing planning rules—it's a recognition that after a decade of established use without enforcement action, the planning position has fundamentally changed.

Our Approach and Success

We worked closely with our client to build a robust application, with extensive evidence, demonstrating that the ground floor had been used as living accommodation continuously since June 2015—well over the required ten-year period.

The council's planning officer carefully reviewed our submission and concluded that, on the balance of probabilities and in the absence of contrary evidence, the breach of condition had indeed occurred continuously for over ten years. The Certificate was granted, giving our client legal certainty and the freedom to continue using their home as they had been.

How We Can Help

If you're living with restrictive planning conditions, using your property in ways that may breach historical permissions, or unsure about the lawful status of your property's use, we can help.

Every case is unique, and the ten-year rule requires careful evidence gathering and presentation. Don't assume your situation is hopeless—get in touch for a confidential discussion about your property and planning concerns.

Contact us today to discuss how we can help secure clarity and peace of mind for your property.

Previous
Previous

Holiday-Let Planning Approval in Colchester Town Centre

Next
Next

Change of use of Barn to Commercial Storage in Maldon, Essex