A Residential Development of 24 Dwellings Approved in Colchester, Essex

We are please that Colchester Borough Council has approved a scheme for 24 no. dwellings on the edge of Colchester, Essex.

The scheme represents a continuation of the Chesterwell development to the north of Colchester and forms part of the wider masterplan for 1,600 dwellings at this location.

The proposed scheme was based on the design principles set out in the original outline planning application, but adapted and evolved to take account of the context of the site. The features that underpinned the design philosophy include:

Whatever it is, the way you tell your story online can make all the difference.

Landscape

The homes have been positioned to face onto the important green infrastructure components. The orientation of homes to provide active frontages to public open green space is designed to help ensure that buildings and landscape form part of the same integrated design.

Density

The proposed scheme has sought 24 dwellings at a density of 20 dwelling per hectare. This represents a lower density than has previously been sought at Chesterwell, however in this particular instance we felt that the site acts as a transition to the countryside and green spaces beyond to create. The lower density creates a relaxed and organic form of development, with a more informal and spacious layout to allow larger plots and larger homes with a more generous provision of private amenity space.

Road Hierarchy

As an edge of settlement site, it is important that the road infrastructure does not dominate the streetscene. The parcel was therefore been arranged as private drives off an adopted shared surface. This ensures an informal rurality to this parcel.

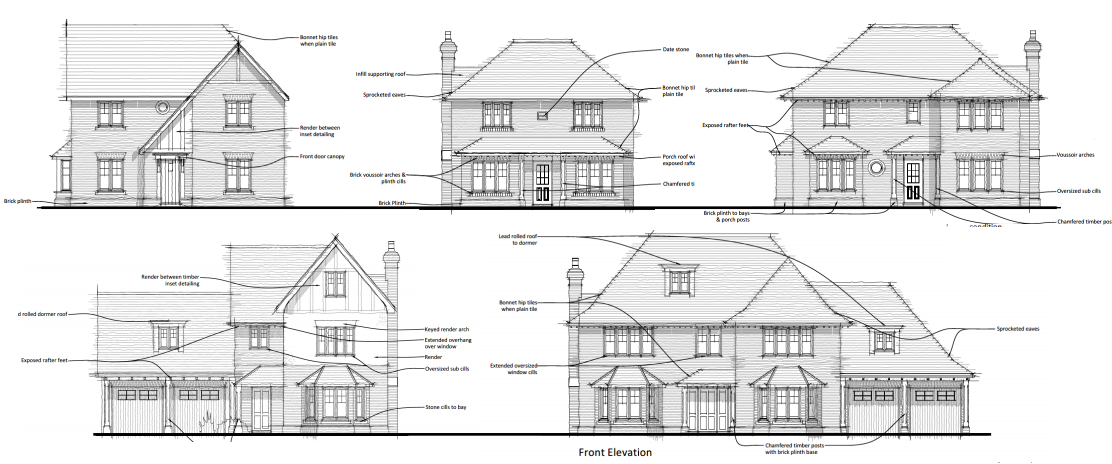
Design Character

The key overarching design features for the dwellings at this location include:

  • Active windows fronting on to Chesterwell Park, including on all key sides of corner plots.

  • Car parking is to the side, with garages set back within the plots, or integrated to ensure that they do not dominant the streetscene.

  • Roadside tree planting and dwellings are set further back in the plot to increase the depth of the front gardens to allow landscaping to dominate the streetscene, as a loose arcadian feature.

  • The use of villa-style house types to front onto the parkland, with traditional architectural detailing.

  • The creation of strong vistas towards Chesterwell Park from both the roadside and from the dwellings themselves.

  • The buildings fronting the green space are distinct from other parts of the wider Chesterwell site, in terms of detailing and appearance.

Contact Us

You have a development project and require design and planning advice, please contact us at mail@adpltd.co.uk or use the form below.

Previous
Previous

Class AA Approval for an Additional Storey in Essex

Next
Next

Rural Office Development Approved in Colchester, Essex