Planning Permission for a Granny Annexe in Essex

Granny Annexe Planning Permission in Essex

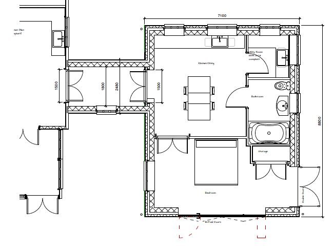
Image by Citi-Group

We are delighted to have secured planning permission for a granny annexe on Mersea Island in Essex.

A Multigenerational Solution: Securing Planning for a Granny Annexe

As our communities continue to evolve, the need for flexible and accommodating living arrangements has become increasingly apparent.

We recently had the privilege of guiding a client through the process of securing planning permission for a granny annexe, a solution that not only addresses practical needs but also embraces multigenerational living.

Our client found herself in a situation familiar to many families – the desire to provide comprehensive care for her elderly mother while maintaining a cohesive family unit. The existing space was becoming increasingly cramped, and the need for additional accommodation was evident.

Navigating the Planning Process

Securing planning permission for a granny annexe can be a complex endeavour, requiring a deep understanding of local policies, and design considerations.

We began by conducting thorough site assessments and offering planning advice in respect to the functional requirements and also ensuring the design proposals complemented the existing character of the property and its surroundings.

We drew upon our deep understanding of local policies, such as the Colchester Local Plan's guidelines for domestic development, to craft a compelling case for the granny annexe.

One significant obstacle we overcame was addressing concerns regarding potential loss of amenity for neighbouring properties. By carefully positioning the annexe, incorporating appropriate screening measures, and ensuring ample distance from adjacent dwellings, we were able to demonstrate that the development would not compromise the privacy of surrounding residents.

Celebrating a Successful Outcome

After a thorough and diligent process, we successfully secured planning permission for the granny annexe.

The approved design seamlessly integrates the annexe into the existing residential landscape, with thoughtful material choices and a subordinate scale that respects the character of the main dwelling and its surroundings.

The annexe's strategic placement and functional links to the primary residence reinforce its ancillary nature, ensuring a harmonious coexistence between the two structures.

Moving forward, the granny annexe will provide our client's family with the much-needed additional living space, enabling them to provide comprehensive care for their mother while maintaining a strong, cohesive family unit.

Contact Us to discuss your proposed Granny Annexe

Whether you're considering a granny annexe, an extension, or any other residential development, our team stands ready to guide you through every step of the process.

Contact us using the form below or email us at mail@adpltd.co.uk to explore how we can transform your vision into a reality that not only meets your needs but also contributes to the vibrant tapestry of our communities.

Previous
Previous

Planning Permission for Class B Commercial Units Near Colchester, Essex

Next
Next

Heritage Development Approved in Uttlesford, Essex