Planning Permission in Tendring for Change of Use to Dental Practice

Image by Kent Griffiths Design

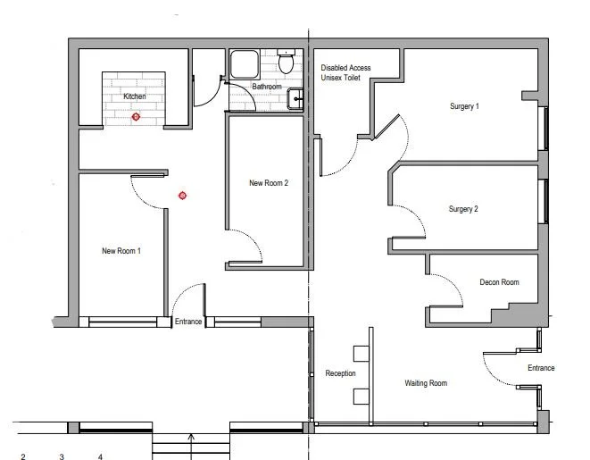
We are pleased to confirm that planning permission has been successfully secured in Tendring for the change of use of a residential property into a dental practice, supporting the expansion of an established local healthcare provider.

The approved development relates to a property in Brightlingsea, where consent was granted for the conversion of a dwellinghouse (Use Class C3) into a Class E(e) dental surgery.

From a planning perspective, the key to success was clearly demonstrating the public benefits of the scheme.

The Local Planning Authority accepted that, although the proposal results in the loss of a residential unit, this is outweighed by the significant need for increased access to dental services—particularly in light of ongoing pressures on NHS provision.

This aligns with local policy objectives to support community facilities and improve health and wellbeing.

Highways and parking considerations were also robustly addressed. Essex Highways raised no objections, which was a critical factor in the decision-making process.

The application received no objections from consultees or local residents, further reinforcing the acceptability of the proposal.

This approval highlights how a well-prepared change of use application—supported by clear evidence of need, policy compliance, and minimal impacts—can successfully unlock development opportunities in Tendring.

Need Help with a Change of Use Application?

If you are considering a change of use or need expert advice from an experienced planning consultant, we can help. Our team specialises in navigating the planning system and presenting strong, policy-led cases that deliver results.

Get in touch today to discuss your project and see how we can support your next planning success.

Previous
Previous

Planning Permission Secured for Supported Living Scheme in Clacton-on-Sea

Next
Next

Planning Appeal Success for 7 dwellings in Tendring