Planning Permission Secured for a Rural Veterinary Practice

Securing planning permission for a mixed-use development in the countryside is never straightforward, but our recent success in Tendring District, Essex demonstrates the power of persistence, professional expertise, and strategic negotiation.

After months of detailed planning and consultation, Tendring District Council has approved our application to transform this rural property into a veterinary practice while maintaining residential accommodation.

The Veterinary Proposal

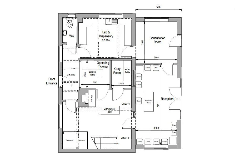
The approved development involves converting the ground floor of the existing dwelling on into a veterinary practice specialising in both equine and small animal care.

The first floor will remain as a one-bedroom residential flat for the live-in veterinarian.

The proposal includes a single-storey extension to the house, consultation rooms, conversion of the existing garage into a physiotherapy unit with rehabilitation equipment, and construction of a new stable for equine patients.

Overcoming the Planning Issues

The path to approval wasn't smooth. Essex County Council Highways initially objected to the application, raising serious concerns about visibility splays, traffic intensification on the B1029, and inadequate turning facilities. These objections could have been fatal to the project.

However, through careful negotiation, and submission of additional technical evidence, we addressed each concern systematically.

We demonstrated that the proposed access arrangements would meet highway safety standards. The parking layout was redesigned to accommodate nine spaces plus horsebox parking, exceeding the required six spaces for the mixed-use development.

Environmental Protection initially raised noise concerns, but through dialogue, we clarified the operation, leading to the withdrawal of their objections.

Supporting Rural Communities

This approval recognises the vital need for veterinary services in rural areas within Essex. The practice will serve local horse owners and pet owners who currently face long journeys to access veterinary care, supporting agricultural and equestrian businesses while providing essential animal healthcare in an underserved area.

The decision acknowledges that while the site lies outside settlement boundaries, functional veterinary practices must be accessible to rural communities and livestock, making this location both logical and necessary.

Your Planning Challenge Awaits

If you're facing planning difficulties or have been told your project is impossible, this case demonstrates that professional expertise and strategic negotiation can overcome significant obstacles. Complex applications require detailed technical work, persistent communication with authorities, and the knowledge to address concerns constructively.

Don't let initial setbacks derail your vision. Contact us today to discuss how we can turn your planning challenges into approved developments.

Previous
Previous

Lawful Development Certificate Secured for a New Dwelling in Croydon

Next
Next

Class R Prior Approval for a Barn Conversion in Maldon