Outline Permission Secured for 200 New Homes in Tiptree

We are delighted to announce that outline planning permission has been secured for 200 new homes on land in, Tiptree, Essex — a significant and policy-compliant extension to one of the Colchester’s most sustainable villages.

This is a major milestone for the project team and our client, and the result of detailed technical work, proactive engagement and careful negotiation with Colchester City Council, statutory consultees and Tiptree Parish Council.

Below, we explain what was proposed, the key planning matters addressed, and what this success means for landowners and developers promoting sites in Tiptree and beyond.

What Was Proposed?

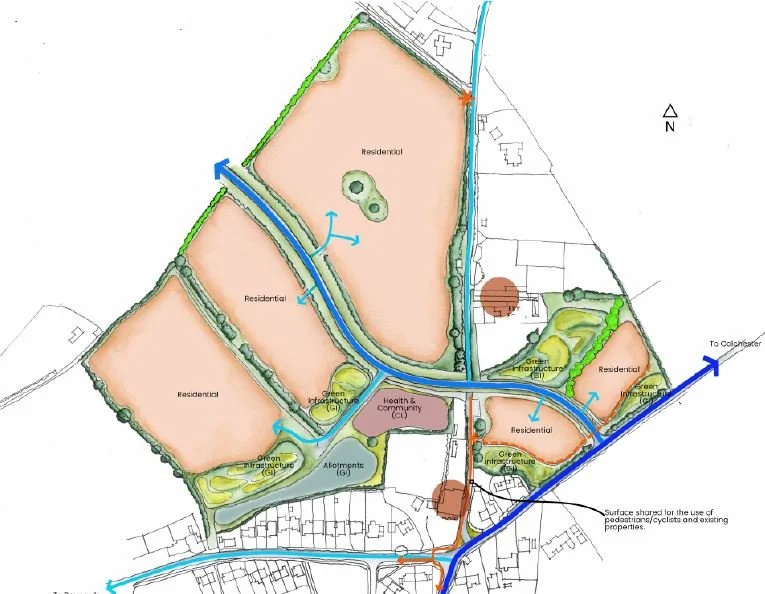
The outline application (with all matters reserved) sought permission for:

  • 200 residential dwellings, with 30% affordable housing in accordance with policy.

  • 0.4 hectares of land for a new health and well-being hub, enabling delivery of a medical centre and community facility.

  • 0.4 hectares of new allotments.

  • Extensive multifunctional green infrastructure, including public open space and sustainable drainage.

  • A new vehicular access onto Colchester Road (B1022).

  • Delivery of the first phase of the Northern Link Road, safeguarding a future connection between Colchester Road and Kelvedon Road.

The site is allocated for development within the adopted Tiptree Neighbourhood Plan. While allocation establishes the principle of development, securing planning permission still required detailed evidence and careful negotiation on technical and infrastructure matters.

Highways and the Northern Link Road

Highways and transport were among the most significant considerations.

The scheme delivers the first phase of the Northern Link Road — a long-planned piece of infrastructure designed to reduce pressure on key junctions in Tiptree and improve connectivity.

Active Travel and Sustainable Transport

In line with national and local policy, the development prioritises sustainable movement.

The site lies within walking and cycling distance of schools, shops, services and bus stops along Colchester Road. The masterplanning approach integrates:

  • Internal walking routes.

  • Connections to existing footways.

  • Opportunities for cycling links.

  • Safe access to community facilities.

Demonstrating real-world accessibility during the course of the application — rather than simply theoretical compliance — was key to securing statutory consultee and planning officer support.

Flood Risk and Drainage Strategy

Although the site lies within Flood Zone 1 (low risk), surface water management required robust evidence.

A a comprehensive Sustainable Drainage Strategy (SuDS) was developed, incorporating:

  • Swales along the spine road.

  • Detention basins within green infrastructure areas.

  • Above- and below-ground attenuation.

  • Permeable paving and filter drains.

Early engagement with drainage officers and a clear technical narrative helped overcome what could otherwise have become a significant obstacle.

Ecology and Biodiversity Net Gain

The ecological strategy was another key component of the planning balance.

Surveys confirmed no overriding ecological constraints, but the scheme still needed to demonstrate policy compliance — including achieving measurable biodiversity net gain.

The proposal:

  • Retains and enhances boundary hedgerows and tree belts.

  • Introduces new habitat corridors.

  • Creates wildflower-rich green spaces.

  • Incorporates bat boxes and ecological enhancements.

  • Delivers multifunctional green infrastructure that supports biodiversity and recreation.

Why This Matters

This approval demonstrates that:

  • Allocated sites still require robust justification and negotiation.

  • Infrastructure-led schemes can gain strong policy support.

  • Early collaboration with councils and consultees pays dividends.

  • Technical challenges — highways, drainage, ecology — can be resolved with the right strategy.

The scheme will deliver much-needed homes, affordable housing, new health provision, allotments, green infrastructure and the first phase of strategic highway infrastructure — representing a comprehensive and sustainable extension to Tiptree.

Promoting Land in Essex?

Whether your site is allocated, emerging, or currently unallocated, securing planning permission requires more than simply citing policy support. It demands:

  • A clear planning strategy.

  • Strong technical evidence.

  • Effective negotiation.

  • Understanding of local political and community context.

If you are promoting land in Essex, and would like to explore its development potential, we would be pleased to assist. From initial feasibility through to outline and reserved matters applications, we provide clear, commercially focused planning advice.

Get in touch today to discuss how we can help unlock your site’s potential.

Previous
Previous

Green Belt Infill Dwelling Approved in Chelmsford

Next
Next

Planning Approval for 3 no. Bungalows in Clacton-on-Sea