Planning Success: Holiday-Let Conversion in Colchester Town Centre

Image by Kent Griffiths

We're delighted to announce that we've secured planning permission for a change of use project in Middleborough, Colchester – transforming the rear ground floor of a Grade II listed building into a boutique holiday-let unit.

This achievement demonstrates how careful planning strategy and heritage-sensitive design can unlock new potential for historic town centre properties while supporting local tourism infrastructure.

The Proposed Development

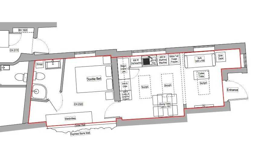
Our client sought to convert the underutilised rear ground floor space of a retail unit into a one-bedroom Sui Generis holiday-let unit.

The property occupies a prime location within Colchester's designated Town Centre, with the front elevation retaining its existing commercial use.

What makes this development particularly special is its relationship with Colchester's Roman heritage. The holiday-let will provide guests with direct views of the historic Roman Wall – a unique selling point that will allow visitors to appreciate this ancient monument during their stay.

The proposal included a car-free development approach, recognising the site's excellent connectivity to public transport and the city centre.

Planning Issues Overcome

This application presented several complex planning considerations that required strategic navigation and robust justification.

Heritage Concerns

Working with a Grade II listed building within a sensitive historic setting demanded careful assessment.

The application was submitted with a comprehensive Heritage Statement demonstrating compliance with NPPF policies and Historic England guidance. The key was showing that internal alterations and minor repairs would preserve the building's structural and historical integrity while the refurbishment would actually improve an area of limited heritage value at the rear.

Critically, we demonstrated that the proposal would secure the building's continued occupation and maintenance – essential for long-term preservation of its listed fabric.

Residential Policy Application

A significant hurdle involved clarifying the legal distinction between holiday-let accommodation and residential dwellings. Drawing on the precedent established in Great Hadham Country Club Ltd v SSCLG (2019), we successfully argued that residential planning policies – including the Nationally Described Space Standards – should not apply to Sui Generis holiday-let uses.

This distinction was crucial in addressing concerns about daylight, outlook, and space standards. We demonstrated that holiday accommodation serves transient visitors who prioritise location and convenience over the standards expected in permanent homes.

Transport Considerations

The car-free nature of the development required justification, particularly given the lack of dedicated parking. We evidenced the site's sustainable location within walking distance of the city centre, excellent public transport links, and availability of nearby public car parks for guests arriving by car.

Amenity

Regarding neighbouring amenity, we carefully addressed overlooking concerns by proposing obscured glazing for the bedroom window overlooking the adjacent alleyway, while demonstrating that other windows would provide beneficial natural surveillance in accordance with Secure by Design principles.

Need Expert Planning Support?

This case study demonstrates the value of strategic planning advice when navigating complex heritage, policy, and design considerations. Whether you're looking to unlock potential in a listed building, secure permission for tourism accommodation, or overcome challenging planning constraints, our team has the expertise to guide your project to success.

Contact us today to discuss how we can help bring your development vision to life.

Previous
Previous

Planning Permission Secured for a Self-Build Dwelling in Tendring, Essex

Next
Next

Green Belt Permission Secured for a New Access to Secondary School